Chers utilisateurs,

Nous rencontrons actuellement des perturbations susceptibles de provoquer des dysfonctionnements sur vos équipements Somfy Protect.

Nous sommes en cours de recherche et de résolution de ce dysfonctionnement. Nous nous excusons pour la gêne occasionnée et faisons notre maximum pour arriver à une solution rapide de ces perturbations.

L’équipe des Yellows  

Question en attente de réponse

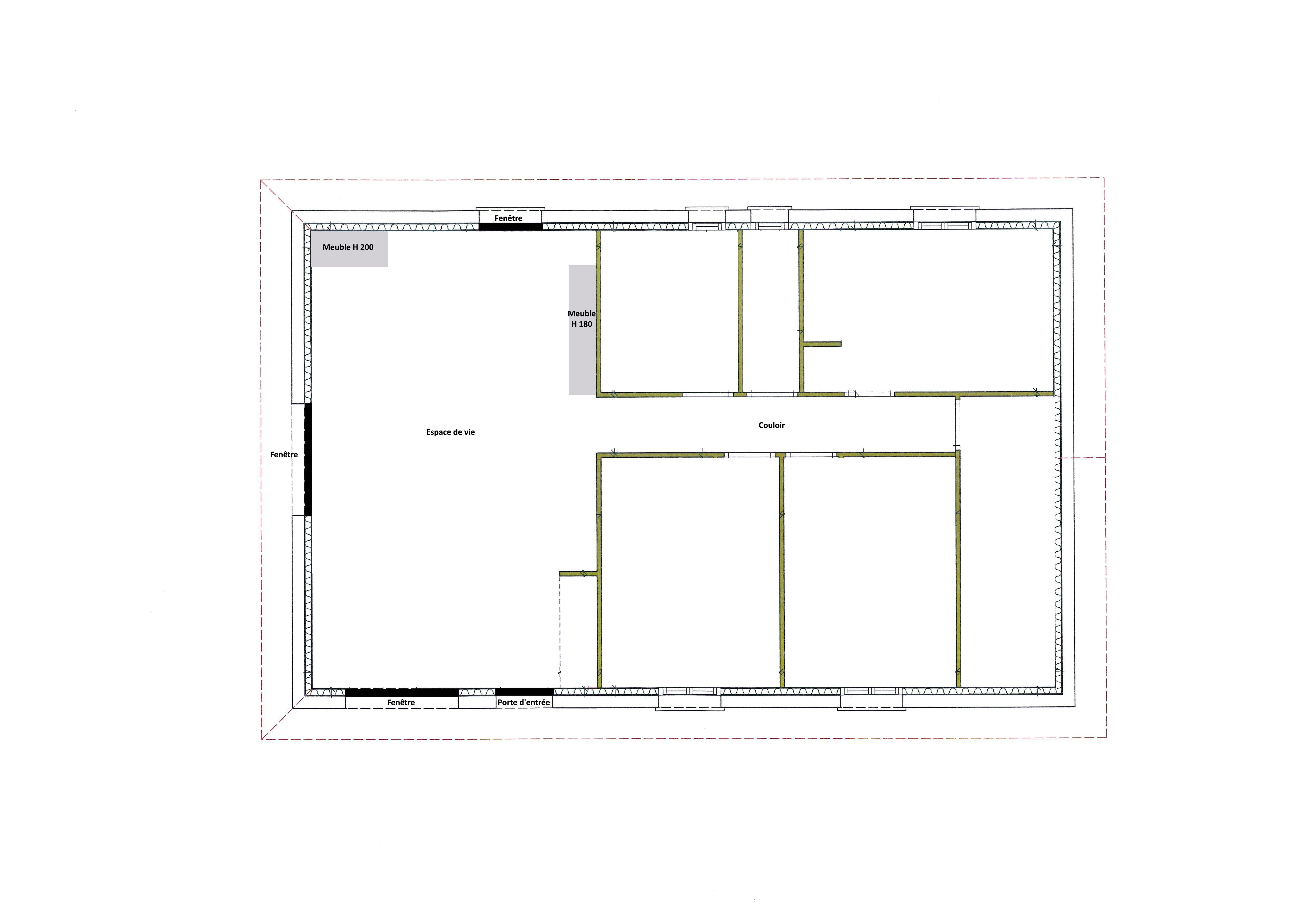
Comment positionner mes détecteurs de mouvement ?

Bonjour,

Je voudrais mettre en place 2 détecteurs de mouvement, un dans mon espace vie et l'autre dans mon couloir. Je ne sais pas où les positionner sachant que j'ai des meubles haut d'un côté, plusieurs baies vitrées et il ne faut pas que les faisceaux se croisent avec ceux du couloir.
Quel serait le meilleur positionnement pour ces 2 détecteurs ?
Merci pour votre aide

Nany
Nany

Nany

Niveau
0
23 / 100
points
  • Partager cette question

    Réponses

    Jean-Luc B.
    Jean-Luc B.

    Jean-Luc B.

    Niveau
    4
    5000 / 5000
    points

    Bonjour

    par rapport à votre plan, j'en mettrais 1 en bas à gauche et l'autre au fond du couloir à droite.

    Bonne journée !

    Nany
    Nany

    Nany

    Niveau
    0
    23 / 100
    points

    Merci pour votre réponse.
    Les faisceaux ne risquent pas de se croiser ?

    Jean-Luc B.
    Jean-Luc B.

    Jean-Luc B.

    Niveau
    4
    5000 / 5000
    points

    Non ! Pas de problème.

    Haut de page