Chers utilisateurs,

Les perturbations sont désormais terminées.

Nous vous remercions pour votre compréhension durant cette période et nous nous excusons pour la gêne occasionnée si vous aviez rencontré des dysfonctionnements de TaHoma et des équipements associés.

L’équipe des Yellows  

Question en attente de réponse

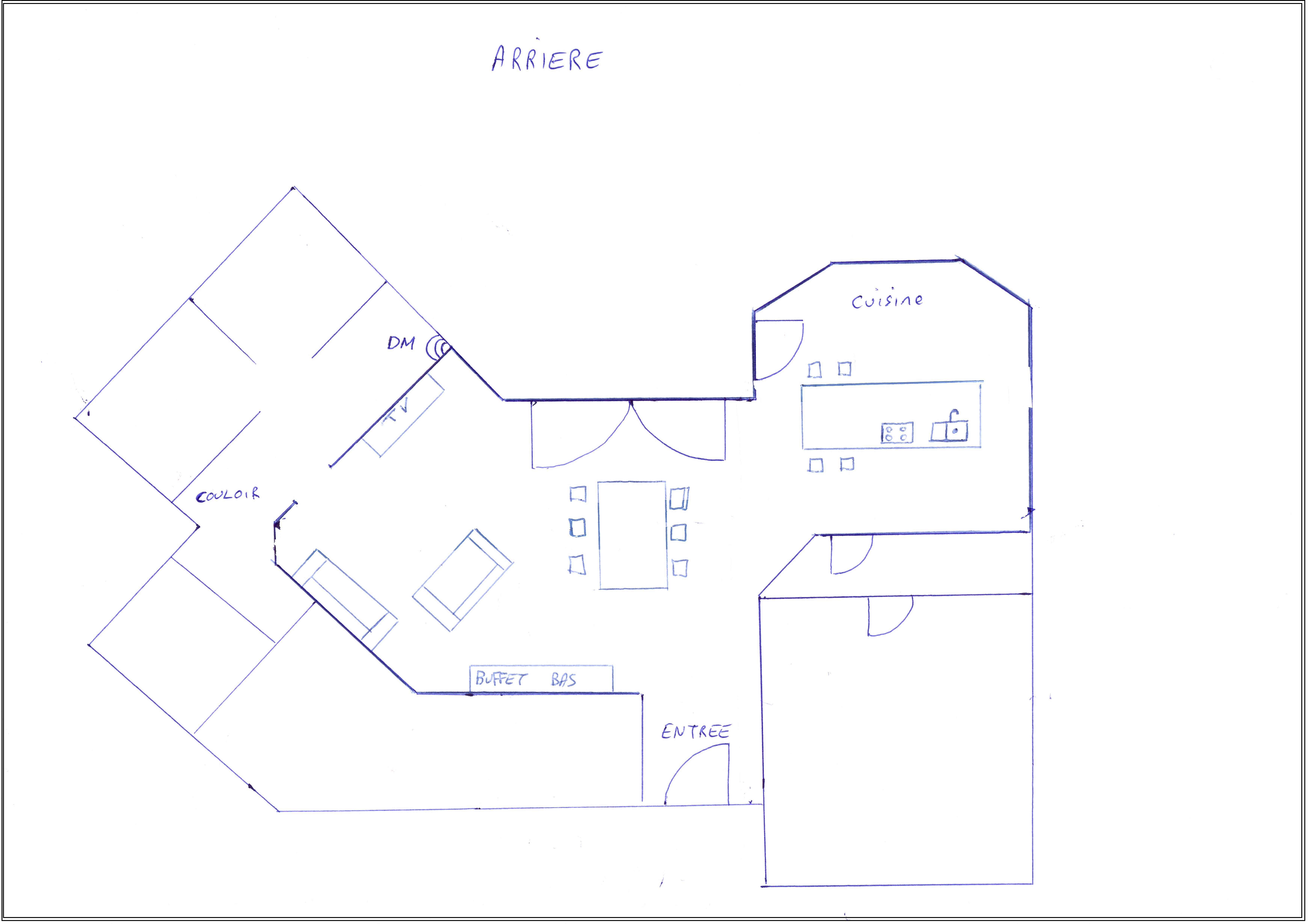
Besoin d'aide implantation DM séjour+cuisine

Bonjour,

J'ai un séjour-cuisine de forme un peu spéciale et je galère un peu à disposer des détecteurs de mouvement parce qu'il ne faut pas que leurs faisceaux se croisent.
A SAVOIR: j'en ai disposé un dans le couloir mais il n'y a pas de porte en entre le couloir et le séjour.

Je souhaite donc disposer deux DM, un pour la cuisine et un pour le séjour.
C'est là que je bloque.
Comment faire pour bien couvrir le séjour et la cuisine sans que cela interfère avec le couloir?

Quelqu'un peut-il m'aider?

Merci d'avance pour votre réponse.

Ludovic
Ludovic

Ludovic

Niveau
1
143 / 750
points
  • Partager cette question

    Réponses

    Robert P.
    Robert P.

    Robert P.

    Niveau
    4
    5000 / 5000
    points

    Bonjour,
    Votre plan ne permet pas d'implanter des DM, il y manque beaucoup de paramètres à prendre en compte (chauffage, mobilier, hauteur des cloisons, ...).
    De toutes façons ne vous faites pas de nœuds au cerveau, vous n'êtes pas obligé de détecter dans tous les recoins, ce qu'il faut détecter c'est la circulation d'un intrus, et comme le DM a un angle d'au moins 90° (suivant le modèle), vous n'avez que l'embarras du choix, sachant qu'il vaut mieux le positionner perpendiculairement à la circulation que face.

    Ludovic
    Ludovic

    Ludovic

    Niveau
    1
    143 / 750
    points

    Merci d'avoir pris le temps de me répondre.
    Mais j'ai fais venir plusieurs installateur pro et à chaque fois j'ai reçu le même type de réponse que la votre.
    Des réponses floues et imprécises.
    Certainement par crainte de donner trop d'information et de voir le futur client faire l'installation lui-même.... ;)
    C'est ce manque de "concret" et de voir ma facture exploser que j'ai décidé de me lancer moi-même.

    Ludovic
    Ludovic

    Ludovic

    Niveau
    1
    143 / 750
    points

    Et pour répondre à Robert P.,
    voici plus de détail pour le schéma:

    -chauffage au sol
    -hauteur des cloisons: 2.60m
    -mobilier: voir schéma ci dessous
    -cuisine surélevée de 37 cm par rapport au séjour (2 marches)

    Robert P.
    Robert P.

    Robert P.

    Niveau
    4
    5000 / 5000
    points

    Je suis également un pro et je n'ai rien à vous vendre ici, mes conseils sont gratuits, et si la réponse est floue c'est que la réponse à votre question n'est pas si simple : Ca dépend, de pleins de paramètres non visibles sur un plan et qu'on ne peut régler sur un forum.

    pinse57 P.
    pinse57 P.

    pinse57 P.

    Niveau
    4
    5000 / 5000
    points

    Salut,

    Deja je peux te déconseiller fortement un dm dans la cuisine pour la bonne et simple raison est qu'avec les graisses de cuissons il sera rapidement inutile.

    Par contre pour proteger ton salon sejour tu peux tout simplement le mettre sur le mur a cote de ta baie vitrée

    Haut de page